• Index
  • About
sprat designs
  • Index
  • About

Stapleton Expeditionary Learning School

50,000 SF (450 Students)

6.76 AC

$10 million estimate

Stapleton, Colorado

Instructor Eric Anderson - Graduate

____

Group | Reflection | Solitude

The notion of group, reflection, and solitude are parts of the core outward bound principles.  However this diverges from the typical education track with a focus on textbook teachings and learning with little group work and no reflection on the experiences one has been through.  This is the dichotomy that the ELS Stapleton designs overcome.  The site design incorporates a "learning trail" as defined by the outward curvature of the classroom modules orientation.  This trial provides connections to the community, reflections to the classroom modules, and pockets of solitude.

ELSnew.jpg ELS-8-Site Analysis.jpg ELS-9-Gym Ext.jpg ELS-10-Classroom.jpg ELS-11-Assembly.jpg ELS-12-Interior-1.jpg ELS-13-Class Int.jpg ELS-14-Model-Class.jpg ELS-15-Model-Site.jpg ELS-16-Hanger 61-0.jpg ELS-17-Hanger 61-2.jpg
View fullsize ELS-2-Page_1.jpg
View fullsize ELS-Narrative.png
View fullsize ELS-3-Page_2.jpg
View fullsize ELS-4-Page_3.jpg
View fullsize ELS-5-Page_4.jpg
View fullsize ELS-6-Page_5.jpg

DA Hotel

Denver, Colorado

Instructor Charles MacBride - Graduate

David Spratlen | Ali Kermanshah

____

Situated on an existing urban infill parking lot this boutique hotel, DA, is in the heart of Denver's LoDo district.  Catering to the needs of the guest, the experience takes precedence.  Individual guest rooms overlook the front range mountain view while providing a personalized experience from the lobby to the guest accommodations. A mix of public and private sectioned spaces surrounds the daily activities of the guest.  This was a collaborative studio where we worked equally together on the hotel design, program, and drawings.  Individually we separated some functions like renderings by Ali, and diagrams by David.  Utilizing SketchUp and Revit we explored various forms and building enclosure skins for this project.

Da Hotel-1-Index.jpg Da Hotel-2-Renderings.jpg Da Hotel-3-Site Plan.jpg Da Hotel-14-Study Model-Facade.jpg Da Hotel-8-Diagrams-Floor Plans.jpg Da Hotel-6-Diagrams-Systems.jpg Da Hotel-10-Sections.jpg Da Hotel-12-Section Details.jpg Da Hotel-7-Diagrams-Program.jpg Da Hotel-5-Diagrams-Site-Solar.jpg Da Hotel-11-Study Model-Floor Plate.jpg Da Hotel-4-Diagrams-Site.jpg Da Hotel-9-Diagrams-Room Plans.jpg Da Hotel-15-Study Model-Section.jpg Da Hotel-13-Study Model-Elevation.jpg

Bents Old Fort Visitors Center

La Junta, Colorado

Instructor Christopher Koziol - Graduate Work

____

Bents Old Fort (BEOL) was a legendary trading post known as the first Anglo-American settlement in Colorado (1833) and it played a pivotal role in the early history of the American Southwest.  It was completely reconstructed by the National Park Service in 1976.  The proposed Visitor's Center transitions the guest down a ramp with informational kiosks to the bookstore and orientation theater below grade.  To enter the park, the guest rises from the theater below grade and re-emerges to the exterior trail head.  An earthen berm denies immediate visual cues of the fort and guides them along a meandering path along the river's focal points.  This journey provides providing a landscape to frame their experiences when reaching the entrance to Bents Old Fort.

BEOL-1-Entrance-Night.jpg BEOL-2-Entrance-Day.jpg BEOL-11-Rendeirng-1.jpg BEOL-7-Entrance Perspective.jpg BEOL-19-Perspective.jpg
BEOL-3-Site Plan.jpg BEOL-8-Floor.jpg BEOL-9-Plans.jpg BEOL-10-Exploded Diagram.jpg BEOL-13-Cross Sections.jpg BEOL-12-Section Perspective-1.jpg BEOL-14-Section-Perspective-2.jpg BEOL-15-Section-Perspective.jpg BEOL-16-Section-Perspective-3.jpg BEOL-18-Long Section.jpg BEOL-17-Section Perspective-2.jpg BEOL-5-Panorama.jpg

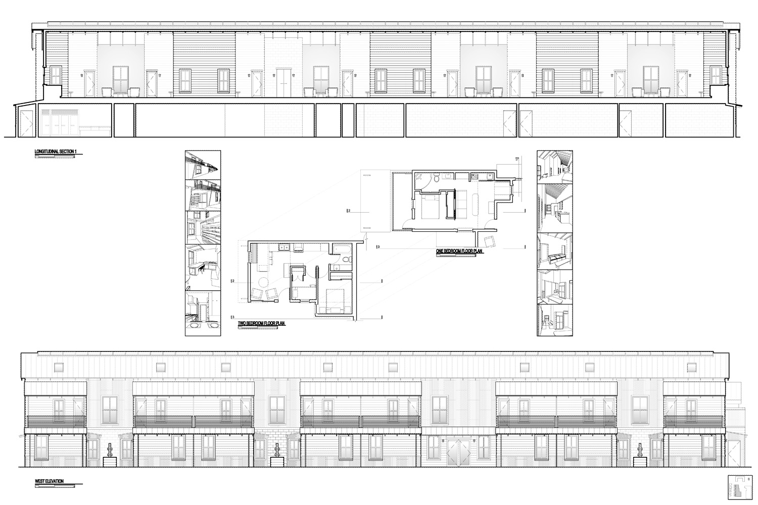
Loveland Feed & Grain

32,000 SF Program Space

     6,500 SF -  Public & Civic

     13,700 SF - Retail & Community

     11,800 SF - Housing

Loveland, Colorado

Instructor Laurence Keith Loftin III - Graduate Work

____

Since 1891 the Loveland Feed & Grain building has been a significant feature of Loveland's cultural identity.  Being a historic landmark, it is critical to revitalize this development through the use of various high activity centers.  This ambition design for a community and arts campus incorporates live | work spaces, retail, community, artist studios, various residential options, and an indoor theater that can be transformed for outdoor events.

See Also: Art of the Detail

Loveland Feed and Grain-1.jpg Loveland Feed and Grain-14.jpg Loveland Feed and Grain-2-Site Plan.jpg Loveland Feed and Grain-11-Residence Plan.jpg Loveland Feed and Grain-8-3bd Duplex.jpg Loveland Feed and Grain-13-Grain Complex Residence.jpg Loveland Feed and Grain-4-Diagrams.jpg Loveland Feed and Grain-3-Diagram-4.jpg Loveland Feed and Grain-15.JPG Loveland Feed and Grain-9-4bd Duplex.jpg Loveland Feed and Grain-12-Grain Complex.jpg Loveland Feed and Grain-7-Diagram-5.jpg Loveland Feed and Grain-10-4bd Section.jpg Loveland Feed and Grain-1 crop.jpg

Art of the Detail

Loveland, Colorado

Instructor Ekaterini "Kat" Vlahos - Graduate Work

____

This historic preservation seminar challenged us to look at a past project and further develop a particular portion of the assembly.  My objective was to re-evaluate possible alternatives to protect the openings at Loveland Feed & Grain mixed-use project. 

- Create more privacy and address the issue of drastic east and west exposure at dawn and dusk. 

- Increase ventilation among the assembly. 

- Shed water from building and capture/divert. 

- Material choice - proximity to site.

Art of Detail-4.jpg Art of Detail-5.jpg Art of Detail-6.jpg Art of Detail-7.jpg Art of Detail-8.jpg Art of Detail-9.jpg Art of Detail-10.jpg Art of Detail-11.jpg Art of Detail-12.jpg Art of Detail-13.jpg Art of Detail-14.jpg Art of Detail-15.jpg Art of Detail-16.jpg Art of Detail-2.jpg Art of Detail-17.jpg Art of Detail-18.jpg Art of Detail-19.jpg Art of Detail-3.jpg Art of Detail-1-Index.jpg

B.A.D. - Boulder Adventure Daycare

Boulder, Colorado

Instructor Ken Andrews - Graduate Work

____

This site is located only a few blocks away from the busy Pearl Street Pedestrian Mall in Boulder, Colorado.  A "performative architecture" will provide a social, cultural, formal, and functional performance.  The design is developed somewhere between a formalistic and hyper-rationalistic approach.  A symbiosis of the two pedagogues allows the form to follow the function and where the function also responds to the form.  Starting from a simple cube enclosing the programmatic spaces, this live|work daycare responds to, and reflects on the bustling activities involved .  These activities within such shared spaces are created through form manipulations of addition, shifting, opening-rotation, splitting, and tilting.

BAD-1-Entrance Perspective.jpg
BAD-2-Boards.jpg
BAD-10-Form Manipulation.jpg
BAD-11-Street Perspective.jpg
BAD-6-Roof.jpg
BAD-7-Adjacenty Diagram.jpg
BAD-3-First Floor Plan.jpg
BAD-4-Second Floor Plan.jpg
BAD-5-Third Floor Plan.jpg
BAD-14-Section-1.jpg
BAD-15-Section-2.jpg
BAD-16-Section-3.jpg
BAD-17-Section-Ventiliation.jpg
BAD-18-Site Perspective.jpg
BAD-12-Ramp Window.jpg
BAD-8-Entrance Ramp.jpg
BAD-13-Second Floor.jpg
BAD-9-Ramp.jpg
IMG_0452.JPG
IMG_0451.JPG

Site Planning

35± acres

Longmont, Colorado

Instructor John Lanterman - Graduate

____

Considering the environment and the need to create liveable, walkable communities in America, this site is planned for mixed use.  Integrating commercial, residential, live|work and open space within the parcel of land.  Such programmatic elements include: 

- Neighborhood retail with office living above (30,000 SF)

- Office space above retail (50,000 SF)

- Live|work space above retail (50 units at 1,200 SF min. each)

- Open space & public use (20% open space)

- Single Family Residence (100 multi-family/apartment units)

- Parking (1 :300 SF of office, 1:250 SF retail, 1:1 Living unit above retail, 1.75:1 condominium units)

Site Planning-1.jpg Site Planning-2-Diagram.jpg Site Planning-1 crop.jpg